EL VAQUERO
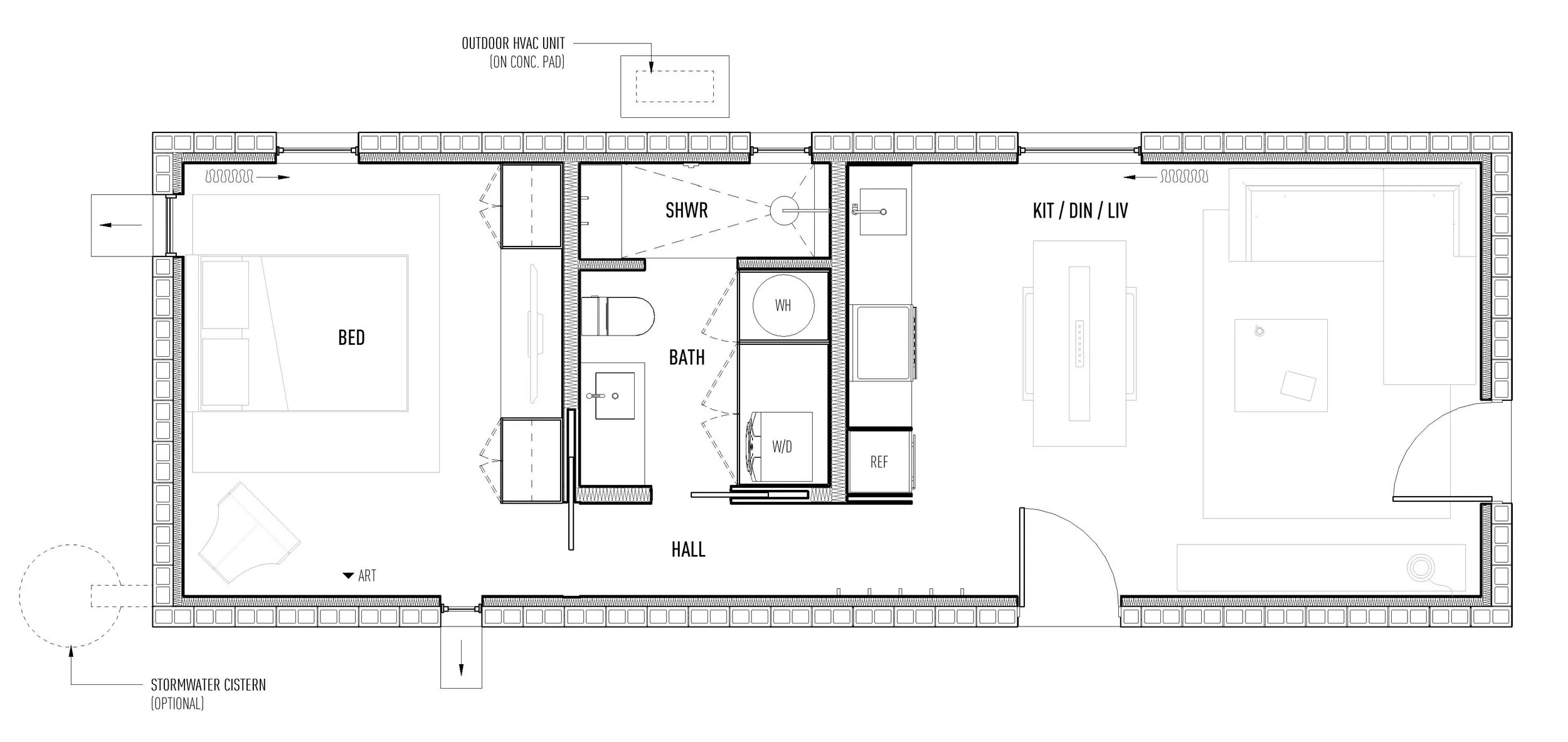
A 703 SF one-bedroom, one-bath accessory dwelling unit with rugged, simple character.
A 703 SF one-bedroom, one-bath accessory dwelling unit with rugged, simple character.