CASA MINI
A City of Tucson Pre-approved Model Plan, Casa Mini is a 557 SF one-bed, one-bath accessory dwelling unit with an efficient L-shaped plan that fits on most lots throughout Tucson.
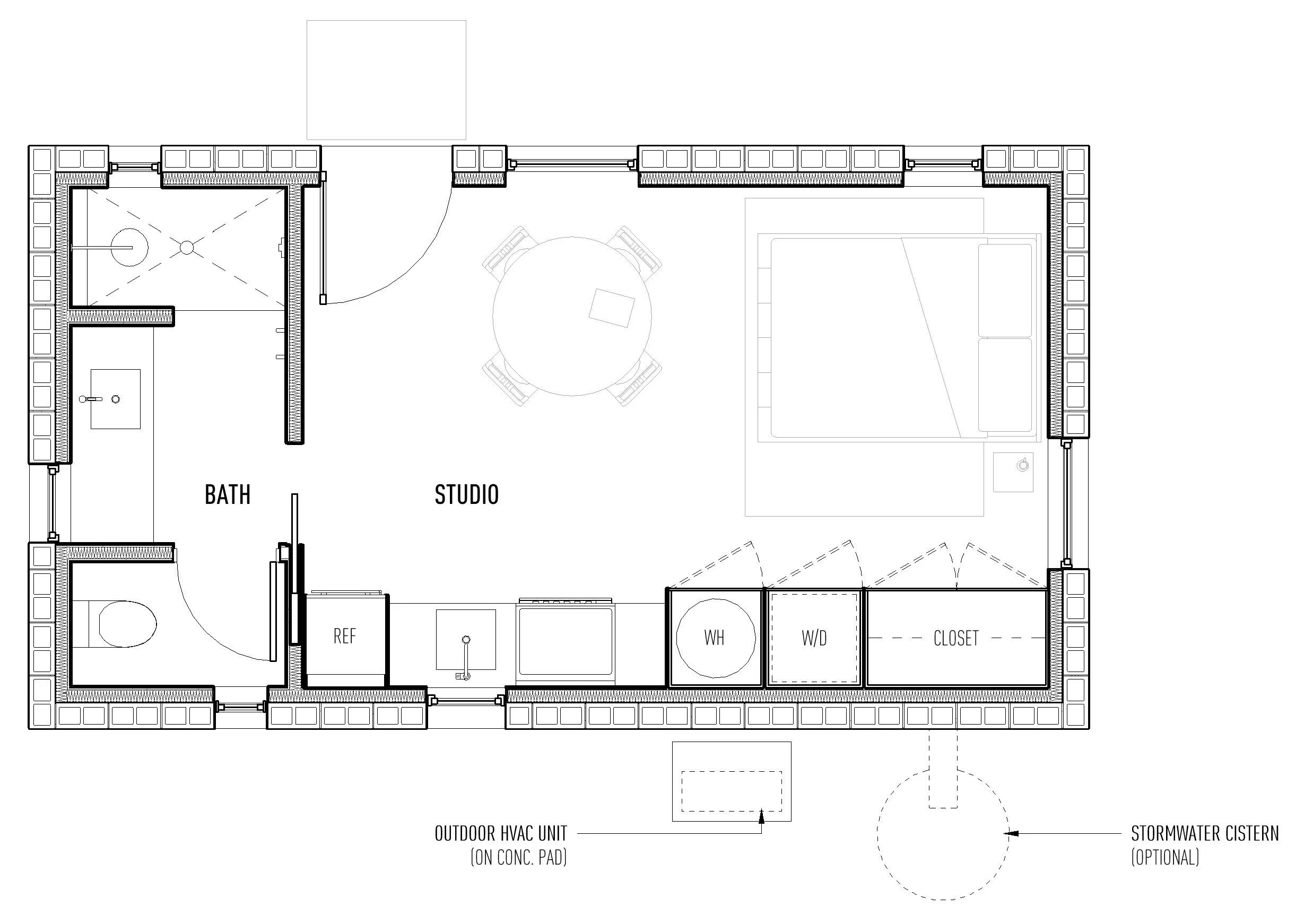
STUDIO
At 390 square feet, the Studio option has a very efficient footprint while providing all of the amenities one or two could need. This compact layout works best for smaller parcels or for those simply looking for a more modest space.

